-
3
-
2
-
2
803/5 City View Road, Pennant Hills NSW 2120
The Pinnacle of Luxury
Welcome to Crown on the Hill
Situated in the highly sought after "Crown on the Hill" this truly amazing Penthouse has no equal.
From the moment you arrive, an overwhelming sense of style, sophistication, elegance, and space take over.
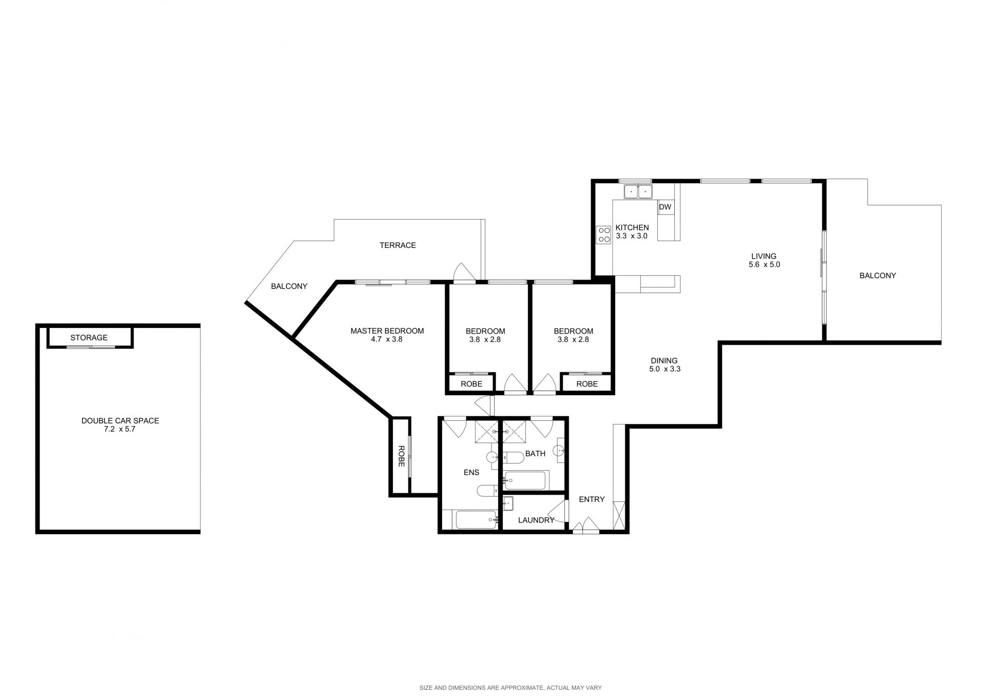
This Penthouse features an open, sun drenched, flowing floor plan. Living spaces flow effortlessly from the dining area to the combined lounge / family area and out to one of the most spectacular entertaining terraces it has been my pleasure to stand on.
The kitchen is a gourmet's delight, featuring stainless steel appliances including a five-burner gas cook top and granite counters and an oversize space for the refrigerator.
The sun-drenched terrace boasts sweeping views across the Sydney skyline, including the Sydney Harbour Bridge and is just perfect for entertaining and watching the many fireworks displays Sydney has on offer all year round.
Offering 3 bedrooms, master with walk in robe and built ins to the other bedrooms. Both the main bathroom and ensuite offer marble tiling with under floor heating, separate showers, baths with the ensuite featuring a spa.
Secure garage parking for 2 cars with space for a workshop completes this truly special Penthouse.
An interesting side note, "Crown on the Hill" is built on the top of a hill which overlooks the greater Sydney basin, making it one of the highest residential buildings in Sydney, thus affording it outstanding, unobstructed panoramic views.
With an interior design by Coco Republic, "Crown on the Hill" offers a sense of style and sophistication, unparalleled in the Hills District.
"Crown on the Hill" features a sauna, gymnasium, three quarter tennis court, and a large fenced grass area for the kids to play safely, all complementing the lifestyle on offer. Situated less than a five-minute walk to bus and rail services, short stroll to Pennant Hills shopping village and an easy drive to either Castle Towers or Hornsby Westfield.
It is with great pleasure that we offer this apartment to the market. This is an extremely rare opportunity and should not be missed. Feel welcome to contact Brett Phillips on 0414 887 266 to arrange your exclusive viewing today.
Disclaimer: All information contained herein is gathered from sources we believe reliable. We have no reason to doubt its accuracy, however we cannot guarantee it.
Situated in the highly sought after "Crown on the Hill" this truly amazing Penthouse has no equal.
From the moment you arrive, an overwhelming sense of style, sophistication, elegance, and space take over.
This Penthouse features an open, sun drenched, flowing floor plan. Living spaces flow effortlessly from the dining area to the combined lounge / family area and out to one of the most spectacular entertaining terraces it has been my pleasure to stand on.
The kitchen is a gourmet's delight, featuring stainless steel appliances including a five-burner gas cook top and granite counters and an oversize space for the refrigerator.
The sun-drenched terrace boasts sweeping views across the Sydney skyline, including the Sydney Harbour Bridge and is just perfect for entertaining and watching the many fireworks displays Sydney has on offer all year round.
Offering 3 bedrooms, master with walk in robe and built ins to the other bedrooms. Both the main bathroom and ensuite offer marble tiling with under floor heating, separate showers, baths with the ensuite featuring a spa.
Secure garage parking for 2 cars with space for a workshop completes this truly special Penthouse.
An interesting side note, "Crown on the Hill" is built on the top of a hill which overlooks the greater Sydney basin, making it one of the highest residential buildings in Sydney, thus affording it outstanding, unobstructed panoramic views.
With an interior design by Coco Republic, "Crown on the Hill" offers a sense of style and sophistication, unparalleled in the Hills District.
"Crown on the Hill" features a sauna, gymnasium, three quarter tennis court, and a large fenced grass area for the kids to play safely, all complementing the lifestyle on offer. Situated less than a five-minute walk to bus and rail services, short stroll to Pennant Hills shopping village and an easy drive to either Castle Towers or Hornsby Westfield.
It is with great pleasure that we offer this apartment to the market. This is an extremely rare opportunity and should not be missed. Feel welcome to contact Brett Phillips on 0414 887 266 to arrange your exclusive viewing today.
Disclaimer: All information contained herein is gathered from sources we believe reliable. We have no reason to doubt its accuracy, however we cannot guarantee it.
